Обяви За нас Контакти
Продава 2-СТАЕН
град София, Манастирски ливади
261 020 €
510 510.75 лв.

(2 584 €, 5 053.86 лв./m2)
Цената е с включено ДДС
История на цената
Коригирана в 11:45 на 8 април, 2026 год.
Обявата е посетена 415 пъти.
Площ:
101 m2
Етаж:
Партер от 6
Газ:
ДА
Строителство:
Тухла, Ще бъде въведен в експлоатация 2027 г.

Описание на имота:


ДИРЕКТНО ОТ ИНВЕСТИТОРА, БЕЗ КОМИСИОННА ОТ КУПУВАЧА!
Очаквано въвеждане в експлоатация Oктомври 2027 г.
Предлагаме 2-стаен апартамент в жилищен комплекс Липите, кв. Манастирски ливади - изток, в близост до бул. Тодор Каблешков и Мол България, на тихо и комуникативно място.
ПРОЕКТЪТ:
Фаза 1, етап 1 (2023 г.) въведен в експлоатация, всички обекти продадени,
етап 2 (2024 г.) въведен в експлоатация, всички обекти продадени
Етап 3 (в строеж) включва 66 апартамента, 6 магазина и 74 паркоместа.
АПАРТАМЕНТ:
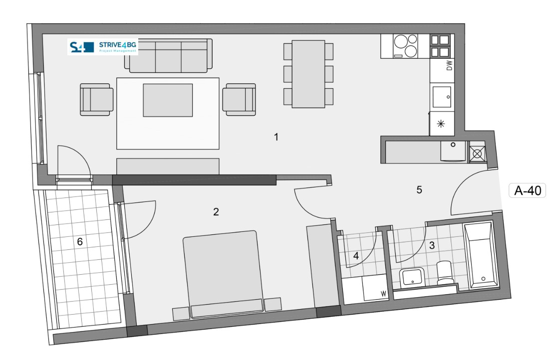
1-ви партерен жилищен етаж със самостоятелен двор, изложение: изток / вътрешен двор
Разпределение: входно антре (10.74 м²), дневна с кухненски бокс и трапезария (30.06 м²), спалня (14.91 м²), баня с тоалетна (5.23 м²), дворна тераса (17.45 м²).
ЗП: 69.20 м², обща площ: 101.53 м²
Към апартамента има подземен склад на цена 6 840,00 евро.
Опция за закупуване на подземно паркомясто с топла връзка - 29 640 ЕUR.
СРОКОВЕ:
Акт 14 септември 2026 г.
Акт 15 август 2027 г.
Акт 16 октомври 2027 г.
СХЕМА НА ПЛАЩАНЕ:
10% при Предварителен договор
10% при Получаване на Акт 14
80% при въвеждане в експлоатация
Инвеститор: Херчеса България
Главен изпълнител: Маркан
Богат избор от 2-, 3- и 4-стайни апартаменти - www.lipite.hercesa.bg
Особености
Тухла
Асансьор
С гараж
С паркинг
Интернет връзка
Видео наблюдение
Контрол на достъпа
Охрана
Саниран
В затворен комплекс
За контакт:
0884885536

Този имот се предлага само на частни лица
Агенция:
СТРАЙВ 4БГ ЕООД
0884885536
СТРАЙВ 4БГ ЕООД logo
Медал за прослужено време
В imot.bg от 2020 г.
strive4bg.imot.bg
Адрес:
област София, гр. София, ж.к. Бокар 21, етаж 1
http://www.strive4.bg
ИЗПРАТИ ЗАПИТВАНЕ
ИЗПРАТИ ЗАПИТВАНЕТО

Продава 2-СТАЕН
град София, Манастирски ливади
Обява: 1b175984568962064

261 020 €
510 510.75 лв.
История на цената
(2 584 €, 5 053.86 лв./m2)

Цената е с включено ДДС
ЗАПАЗИ ОБЯВАТА

Местоположение: град София, Манастирски ливади

Допълнителни данни за имотите в района и сравнение с други райони

Покажи

Период

и 3 месеца

* Средните цени са определени чрез медианна стойност